Проект гаража на 2 машины с навесом G107

16200,00
р.
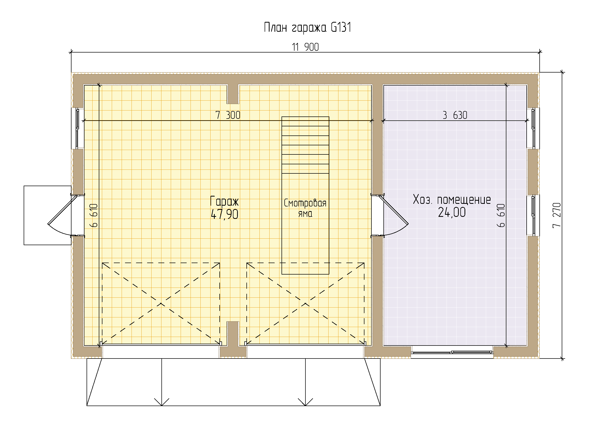
Проект гаража на два автомобиля с навесом, находящиеся под единой вальмовой кровлей. Гараж на два автомобиля с навесом выполнен из облицовочного кирпича и отлично сочетается с большинством кирпичных домов. Одно парковочное место располагается внутри бокса, второе непосредственно под навесом. Бокс оснащен автоматическими ролл-воротами и двумя отдельными выходами для удобства перемещения. Гараж предназначен для размещения внутри участка и рассчитан на автомобили С-класса.

ПОСМОТРЕТЬ ПЛАНИРОВКУ

Тип проекта: Кирпичные гаражи

Общая площадь: 47 м2

Гаражные места: 2

Наружняя отделка: облицовочный кирпич

Несущий конструктив: кирпич

Крыша: 4-х скатная

Фундамент: плитный

Этаж: 1

Ширина: 8 м

Глубина: 7 м

Made on
Tilda